Comment créer un plan de maison facilement (guide complet)
Créer un plan de maison est une étape essentielle avant tout projet de construction, rénovation ou aménagement intérieur. Un plan permet de visualiser l'organisation des pièces, mesurer les surfaces, préparer les travaux et communiquer avec les artisans. Dans ce guide, découvrez comment créer un plan de maison facilement étape par étape.
Ce que vous allez apprendre
- La méthode classique pour créer un plan étape par étape
- Comment scanner une pièce avec un iPhone LiDAR
- Comparaison des outils (logiciels 3D, scan, dessin)
- Les erreurs courantes à éviter
Aujourd'hui, plusieurs méthodes permettent de créer un plan : le dessin manuel, les logiciels de plan 3D, ou encore le scan automatique avec smartphone. Voyons cela en détail.
Comment créer un plan de maison facilement (méthode simple)
Voici la méthode classique utilisée pour créer un plan.
Étape 1 : mesurer les pièces
Commencez par mesurer les dimensions principales :
- Longueur des murs
- Largeur des pièces
- Hauteur sous plafond
Un mètre ou un télémètre laser peut être utilisé.
Étape 2 : dessiner les murs
Tracez ensuite la forme du logement :
- Murs extérieurs
- Murs intérieurs
- Séparation des pièces
Cela permet de visualiser la structure générale.
Étape 3 : ajouter les ouvertures
Ajoutez ensuite :
- Portes
- Fenêtres
- Escaliers
Ces éléments sont indispensables pour obtenir un plan réaliste.
Étape 4 : vérifier les dimensions
Avant d'utiliser le plan pour un projet, il est important de vérifier :
- Les surfaces
- Les proportions
- Les distances entre les murs
Étape 5 : créer une version numérique
La dernière étape consiste à transformer le plan en version numérique afin de pouvoir :
- Modifier facilement le plan
- Partager le projet
- Visualiser en 3D

Maquette 3D générée avec MakePlan — visualisez votre logement en 3D
Créer un plan de maison avec un iPhone (méthode rapide)
Les nouvelles technologies permettent aujourd'hui de créer un plan beaucoup plus rapidement. Certains smartphones sont équipés d'un capteur LiDAR, capable de scanner un espace en 3D.
Cette technologie permet de :
- Mesurer automatiquement les murs
- Scanner une pièce
- Générer un plan numérique
Avec des applications comme MakePlan, il est possible de scanner un logement et obtenir un plan en quelques minutes.
Ouvrir l'application
Lancez MakePlan sur votre iPhone
Scanner la pièce
Déplacez le téléphone lentement dans l'espace
Générer le plan
Le plan est créé automatiquement


Du scan à la génération du plan — directement depuis votre iPhone
Cette méthode est aujourd'hui utilisée par de nombreux professionnels du bâtiment.
Comment scanner une pièce pour créer un plan
Voici les étapes pour créer un plan automatiquement grâce au scan 3D.
1. Scanner l'espace
Déplacez lentement votre smartphone dans la pièce afin de capturer :
- Les murs
- Les angles
- Les dimensions
Le système analyse l'espace en temps réel.
2. Générer le plan automatiquement
Une fois le scan terminé, l'application transforme les données en plan. Le plan peut être :
- 2D
- 3D
- Dimensionné
Cela permet d'obtenir rapidement un plan exploitable.

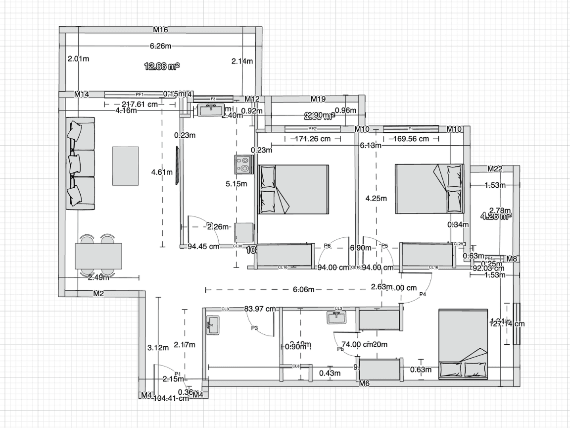
Plan 2D généré automatiquement avec MakePlan
3. Exporter le plan
Le plan peut ensuite être exporté en différents formats :
- Image
- Plan technique
Ces fichiers peuvent être utilisés pour préparer un projet de rénovation ou partager le plan avec un client.
Les différentes méthodes pour faire un plan de maison
Il existe plusieurs méthodes pour créer un plan.
Dessin manuel
La méthode traditionnelle consiste à dessiner le plan sur papier après avoir mesuré les murs.
Avantages
- Simple
- Accessible
Inconvénients
- Peu précis
- Difficile à modifier
Logiciels de plan 3D
Les logiciels de plan permettent de créer des plans numériques. Exemples : HomeByMe, Archifacile, Homestyler. Ces outils permettent de visualiser le projet en 3D.
Scan LiDAR
Le scan LiDAR permet de capturer un espace en 3D et générer automatiquement un plan.
Avantages
- Rapide
- Précis
- Gain de temps important
Quel est le meilleur outil pour créer un plan de maison
Voici une comparaison simple des outils disponibles.
| Outil | Type | Avantage |
|---|---|---|
| HomeByMe | Logiciel 3D | Rendu réaliste |
| Archifacile | Plan 2D | Simple à utiliser |
| Homestyler | Design intérieur | Décoration |
| MakePlan | Scan LiDAR | Génération automatique |
Contrairement aux logiciels traditionnels, MakePlan permet de scanner un espace et générer un plan automatiquement.
Qui utilise ce type d'outil aujourd'hui
Les applications de création de plan sont utilisées par de nombreux professionnels.
Architectes
Pour réaliser des relevés de bâtiments.
Agents immobiliers
Pour présenter les plans d'un bien immobilier.
Artisans
Pour préparer des travaux de rénovation.
Décorateurs
Pour visualiser l'aménagement intérieur.
Entreprises du bâtiment
Pour effectuer des métrés rapidement.
Les erreurs à éviter lors de la création d'un plan
Certaines erreurs peuvent rendre un plan inutilisable.
Mauvaise mesure
Des dimensions incorrectes peuvent fausser tout le projet.
Oublier les ouvertures
Les portes et fenêtres doivent être intégrées au plan.
Mauvaise échelle
Un plan doit être proportionnel pour être exploitable.
Questions fréquentes sur les plans de maison
Comment faire un plan de maison gratuitement ?
Quel logiciel pour faire un plan de maison ?
Comment mesurer une maison pour faire un plan ?
Peut-on créer un plan de maison avec un smartphone ?
Créer un plan de maison en quelques minutes
Grâce aux nouvelles technologies comme le scan LiDAR, il est désormais possible de créer un plan de maison rapidement.
Avec des applications comme MakePlan, les professionnels peuvent :
- Scanner une pièce
- Générer un plan
- Exporter les dimensions
- Préparer un projet de rénovation
Le tout directement depuis un smartphone.
Prêt à créer
votre premier plan ?
Bénéficiez de 3 projets entièrement gratuits.
Créez des plans et des maquettes 3D en quelques minutes ! *
Sans engagement.
* Fonction LiDAR disponible uniquement pour iPhone Pro et iPad Pro
